Urban Driveway Application Form

Information for the Applicant

This form may be used to apply for approval for the construction of an urban driveway in the Queanbeyan-Palerang Regional Council area.

Driveways over Council public road verges must be constructed by a suitably qualified concrete contractor.

A copy of relevant Contractor Licence and the Public Liability Insurance for a minimum of $20,000,000 shall be provided to Council with this driveway application.

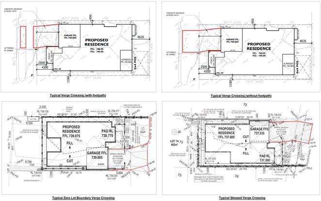
The residential driveway width shall match the width of existing Vehicle Kerb Crossing (VKC) if applicable. The driveway width shall not exceed 6.0m and not be less than 3.0m for Modified Layback Kerb (MLBK). For industrial and commercial driveways, width, depth and reinforcement may vary.

The driveway edges across Council owned verge shall be parallel. The driveway edges shall be perpendicular to the footpath and front boundary of this Lot (unless noted otherwise).

The driveway grade shall not exceed 4% (unless noted otherwise) and fall back towards road from the front boundary.  Existing verge grades and levels shall not be altered.

The driveway edges are not to be closer than 1.0m to any electrical, Telstra, NBN, AusPost mailbox, stormwater pit, water meter, hydrant, stop valve, street tree, or other services within the verge. The driveway edges shall not be less than 1.0m from Lot side boundary.

As a minimum, the new residential driveway is to be constructed of 100mm thick reinforced concrete with one-layer of SL72 reinforcement mesh chaired to mid-depth. Provide bituminous impregnated Jointex boards along back of Kerb/Vehicle Crossing and sides of footpath. Provide construction joint along front boundary.

Works must be constructed in accordance with QPRC’s D13 Vehicular Access Design Specification and Standard Drawings QPRC-SD-102 to QPRC-SD-111 (depending on the location of the driveway works);

www.qprc.nsw.gov.au/Building-Development/Engineering-Design-and-Construction-Specifications

Any damage to the existing road surface and pavement, vehicle crossing, footpaths, kerbs and gutter and street trees shall be made good at full cost to applicant.

Existing street trees within verge are not to be removed (unless written approval from QPRC Urban Landscapes has been granted prior).

Two Council inspections are mandatory;

1) prior to pouring concrete, and

2) post completion.

Each inspection will require a minimum of 24 hours notice.

A fee will be imposed for the two (2) inspections and payable prior to the commencement of construction works. Please refer to QPRC Fees & Charges.

Any repeat inspections for unsatisfactory or incorrect work will incur additional inspection fees. Please refer to QPRC Fees & Charges.

Sections A, B, C and D of this form are to be completed. Incomplete forms or missing attachments (Detailed Plans, Licence and Insurance) will be returned without processing.

Once completed, this Urban Driveway Application Form will be submitted to the Development Support team at Queanbeyan-Palerang Regional Council.

Section A - Property Details

Section B - Driveway Details - this driveway is:

Section C - Details of the Applicant

Section D - Contractor Declaration and Documentation

Browse
Browse
Browse
Draw signature|Type signatureClear

Section E - Maximum Grades for an Urban Driveway

Section F - Typical Urban Driveway Verge Crossing Examples